


Senoeseret I was een farao van de 12de Dynastie, zijn naam betekent: “Man van godin Oeseret” en zijn tweede naam betekent: “De ziel van Ra is in beweging gekomen” .
Onder Senoeseret bereikt het rijk een culturele bloei.
Senoeseret bouwde eveneens een piramide bij de nieuwe hoofdstad Itjitaoei, deze piramide is een kopie van de piramide van Pepi II.
Militair probeerde hij zijn macht in het rijk te vestigen en daarbij moest hij de moordenaars van zijn vader bestrijden.
De rijkste Nomarchen heeft hij zeker niet aangekund en waarschijnlijk heeft hij ze toch wat autonomie moeten gunnen.
Daarnaast heeft hij zijn rijk proberen uit te breiden naar het zuiden en daarbij Nubië onderworpen tot bij de 2e cataract, de stad Bouhen zou voor de verdere expedities een belangrijke rol spelen.
In het noorden zijn er verschillende expedities naar Sinaï en er is één expeditie naar Pount geweest.
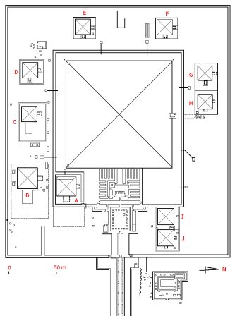
Amenemhat I’s Piramide te el-Lisht.
Deze piramide werd genoemd “Cultus plaatsen van Amenemhats verschijning“.
Alleen ruïnes van ongeveer 20 meter hoog zijn overgebleven.
De entree naar het ondergrondse gedeelte was gesitueerd in het midden van de noordelijke muur, op vloer niveau.
Over de entree stond de noord kapel, achter een valse granieten deur bevind zich een gang die geleidelijk afloopt naar de grafkamer, de gang was afgewerkt met roze graniet en verzegeld met blokken van hetzelfde materiaal.
De dodentempel aan de oostkant van de piramide had zijn eigen naam “Hoog reist Amenemhats schoonheid“.
Van deze tempel, afmetingen 21 x 32 m en oost-west georiënteerd, is haast niets overgebleven.
De piramide en de dodentempel waren omringd door een tweetal muren, in de ruimte tussen deze muren zijn de tombes ontdekt van leden van de koninklijke familie en hof-dienaren.
G.Maspero meldt dat de stenen blokken afkomstig zijn van oudere koninklijke tombes (Cheops, Chephren, Oenas en Pepi II) en gebruikt zijn voor deze constructie.
Reconstructie van het fort van Buhen.
(Met dank van Franck Monnier (Wikipedia))
Bij Buhen, gelegen tussen de 1e en 2e cataracten, liet Sesostris I een grensfort bouwen. Een inscriptie stelt dat “geen zuiderling ongecontroleerd voet op Egyptisch grondgebied mag zetten“.
Het gebouw is nu verdwenen in het Nassermeer.
